
LUIZA HELENO
SAY IT LOUD - FLORIDA Exhibitor
Florida Based Designer
Who or what inspires you professionally?
My parents will always inspire me professionally. They have proven that passion and hard work can overcome your circumstances and lead you to who you want to be.
LUIZA HELENO
Bio:
As an architecture student, The Great Designer Luiza Heleno is continuously fascinated by learning all of the aspects of life that architecture encompasses. Since Luiza was young, she has been passionate and driven by the act of creating something, and by the time she was a young adult, she found that passion in architecture. Growing up as a Brazilian in Florida, she has been exposed to the many beautiful cultures that exist here, and strives to find her own voice through architecture.
How did you first learn about architecture and when did you decide that built environment profession was an area of interest for you?
I first learned about architecture in high school through a book about how architecture shaped society. Since then, I have been passionate about researching how architecture shapes how we live, especially in Miami.
What do you do?
I am an architecture student in the final year of my Masters program at Florida International University in Miami. I am also Interning at HKS through the IPAL program at FIU.
What excites you in the work you do?
Architecture excites me in the way it can tell a story about a time and place. It is a powerful tool that can shape cities and how people interact with spaces and each other.
Who or what inspires you professionally?
My parents will always inspire me professionally. They have proven that passion and hard work can overcome your circumstances and lead you to who you want to be.
What is your proudest professional accomplishment or achievement?
My proudest achievement today is when I received my acceptance letter to study at FIU. Since then I have done all I can to make the most out of my time, and now being the chapter president for AIAS, and in the IPAL program.
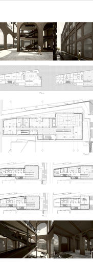
Featured Project Name:
Bronx Community + Sports Center
Featured Project Location:
Bronx, NY
Featured Project Completion Date:
2023
Role in Featured Project:
Student Designer
Featured Project Description:
The Bronx Community Center is an ambitious architectural project aimed at creating a harmonious blend of classical architecture motifs and modern design elements to establish a community and fitness center that seamlessly integrates with the cultural fabric and historical significance of District 4 in The Bronx. This project seeks to create a functional and inspiring space where people come together to enhance their physical well-being, engage in culture, and create unity within the community.









